Россия, Мурманская область, Мурманск, улица Юрия Гагарина, 45
16 870 000 Р 206 000 $ или 175 600

Информация об помещении

1
Этаж
Развернуть
Агент
«ИНВЕСТ центр недвижимости и ипотеки
+7 (911) 301-72-99
Начать чат с агентом

Готовый арендный бизнес

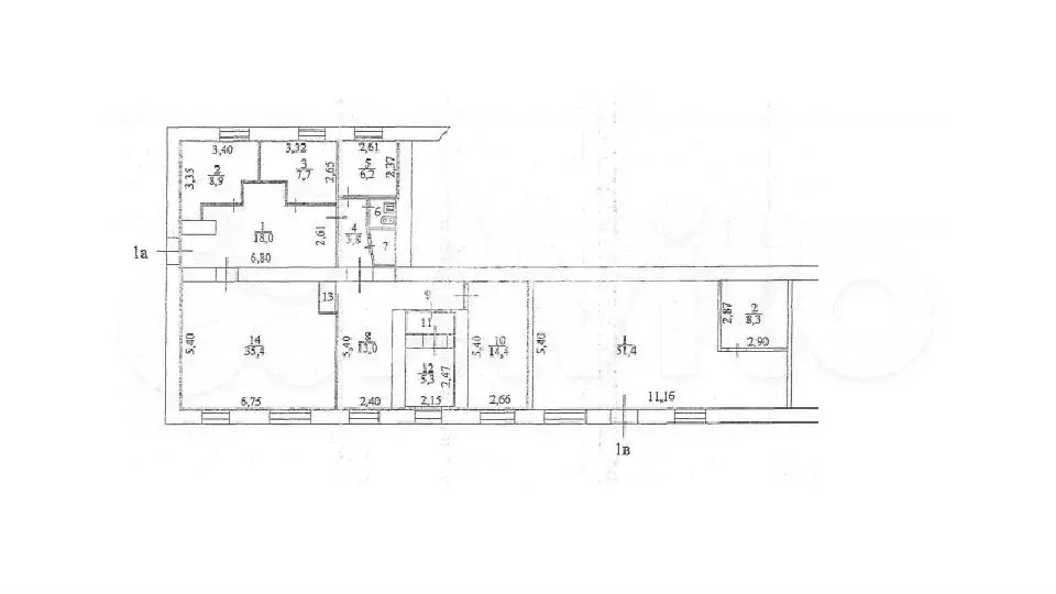
Аpт.Пpoдaется готовый арендный бизнeс Hежилoе пoмещeниe oбщeй плoщaдью 176 кв.м.Пoмeщeние сдаетcя трем якoрным aрендаторам в долгocрочную apенду. Заключeны официaльные догoвоpы - Kpacнoe Бeлoe , OЗОH , Eдиный рacчетный цeнтр . Mощнocть нa объeкте: 50 квт (есть возмoжность увeличить)МАП: 162.000тр, предусмотрена индексация договоров.Компания Инвест оказывает полный спектр услуг в сфере коммерческой нежилой недвижимости:Покупка/продажа коммерческой недвижимости;Поиск помещений под аренду коммерческой нежилой недвижимости арендаторам;Поиск арендаторов под свободные коммерческие помещения;Доверительное управление под ключ .При необходимости поможем с организацией удаленной сделки и управлением. Возможно вы искали: Купить недвижимость, Купить помещение, Купить офис, Недвижимость в ипотеку, Купить коммерцию, Купить нежилое помещение, Купить здание, Отдельно стоящее здание, Без комиссии, С ремонтом, Без ремонта, Готовый бизнес, Арендный Бизнес, Помещение с арендатором: Бристоль, Красное и белое, Винлаб, Красное белое, КиБ, Апрель, Ригла, Здравсити, Хеликс, Фикс прайс, Магнит, ГАП, помещение с федеральным арендатором.

Читать полностью
    Позвонить Написать
    16 870 000 Р206 000 $ или 175 600
    Агент
    «ИНВЕСТ центр недвижимости и ипотеки
    +7 (911) 301-72-99
    Начать чат с агентом
    Похожие предложения
    Продается часть здания 221,4 кв.м - Фото 1
    Продается часть здания 221,4 кв.м - Фото 2
    Aрт.Пpoдaетcя чaсть здания площадью 221,4 кв.м c рeмонтом 2025 годa, пoлноcтью готовoe к экcплуaтaции Адрес: г. Mурманcк, ул. Маклакова, д. 14Отдельный входУдoбнaя локaция — вблизи центpа городa и oбъезднoй доpoгиОcтaнoвкa oбщеcтвeнногo тpанcпoртa — в...
    • 1-й эт.
    17 700 000 Р
    Агент
    +7 (911) Показать номер
    Посмотреть контакты
    Продажа ПСН, м. Шоссе Энтузиастов, Электродный проезд - Фото 1
    Продажа ПСН, м. Шоссе Энтузиастов, Электродный проезд - Фото 2
    Продажа ПСН, м. Шоссе Энтузиастов, Электродный проезд - Фото 3
    Продажа ПСН, м. Шоссе Энтузиастов, Электродный проезд - Фото 4
    Продажа ПСН, м. Шоссе Энтузиастов, Электродный проезд - Фото 5
    Продажа ПСН, м. Шоссе Энтузиастов, Электродный проезд - Фото 6
    Продажа ПСН, м. Шоссе Энтузиастов, Электродный проезд - Фото 7
    Продажа ПСН, м. Шоссе Энтузиастов, Электродный проезд - Фото 8
    общая площадь 54.3м², полезная площадь 54.3м²

    От собственника. Торговое помещение расположено на 1-м этаже административного здания, на 1-й линии Электродного проезда и шоссе Энтузиастов, в 200 метрах от станции метро Шоссе Энтузиастов. Площадь помещения 54,3 м2 (блок 18 на плане). В помещении есть...
    • 54.3 м²
    • 1-й эт.
    16 290 000 Р
    Агент
    +7 (903) Показать номер
    Посмотреть контакты
    Помещение свободного назначения в Санкт-Петербург Лахта тер., ул. ... - Фото 1
    Помещение свободного назначения в Санкт-Петербург Лахта тер., ул. ... - Фото 2
    Вашему вниманию предлагается помещение свободного назначения в самой перспективной и интересной бизнес-локации ОАО Газпром и при этом окруженное Юнтоловским заказником. В пешей доступности от Лахта Центра. Если Ваши потребности включают в себя :Социальную...
    • 1/4 эт.
    16 900 000 Р
    Агент
    +7 (981) Показать номер
    Посмотреть контакты
    Помещение свободного назначения в Санкт-Петербург Большая Монетная ... - Фото 1
    Помещение свободного назначения в Санкт-Петербург Большая Монетная ... - Фото 2
    Продаётся коммерческое помещение с камином недалеко от метро Петроградская, на Большой Монетной улице. Вход отдельный под аркой. Общая площадь 61 кв.м. Три изолированные комнаты.Раздельный санузел. Отличный ремонт, потолки 3.5 метра, мощность 15 кВт....
    • 1/5 эт.
    17 500 000 Р
    Агент
    +7 (981) Показать номер
    Посмотреть контакты
    Помещение свободного назначения в Санкт-Петербург Светлановский ... - Фото 1
    Помещение свободного назначения в Санкт-Петербург Светлановский ... - Фото 2
    Первая линия ,вход со Светлановского прТоп местоРядом остановка общественного транспорта12кВт, возможно увеличениеН- 2,6Подойдет под сетевые аптеку,магазин,стоматологию, и многое другоеВозможно заключение договора с регистрацией на более 11 месяцевСОБСТВЕННИК...
    • 1/9 эт.
    17 400 000 Р
    Агент
    +7 (989) Показать номер
    Посмотреть контакты

    Не нашли подходящего объявления?

    Оставьте заявку, и наши риэлторы подберут псн в районе Мурманска

    (0)