Россия, Мурманская область, Мурманск, ул. Трудовых Резервов, 8
5 000 000 Р 62 320 $ или 54 360

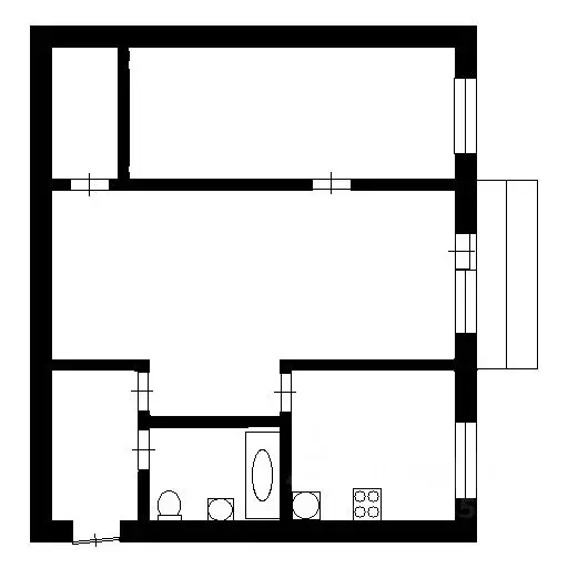
Информация о квартире

55 м2
Площадь
36 м2
Жилая
6 м2
Кухня
3
Комнаты
3
Этаж
5
Этажность

Дополнительная информация

Тип дома
кирпичный
Развернуть
Агент
+7 (911) 301-84-23
Начать чат с агентом

3-к кв. Мурманская область, Мурманск ул. Трудовых Резервов, 8 (55.7 м)

Продается прекрасная 3-комнатная квартира в шаговой доступности от кинотеатра Мурманск .Отличная локация (2 минуты неторопливым шагом до кинотеатра Мурманск , много парковочных мест во дворе, также рядом есть платная охраняемая автостоянка и автосервис. Рядом с домом находится все самое необходимое: сетевой супермаркет, пункт выдачи заказов Озон и прочее.Дом кирпичный, крышу полностью меняли в прошлом году.Сама квартира находится на удобном третьем этаже, имеет 3 комнаты, планировка смежно-изолированная, санузел совмещенный. За счет того, что дом кирпичный, внутри квартиры можно спроектировать любую перепланировку по вашему вкусу (поможем с документами по перепланировке, если такое будет необходимо). В зале также имеется вместительная кладовка, где можно рационально организовать гардеробную. Сама квартира нуждается в ремонте, вместе с тем уже заменены все окна на с/пакеты, санузел в кафеле, полностью заменены стояковые трубы с подводкой, также смонтирован вывод труб под установку водонагревателя. Квартира оборудована охранной сигнализацией.Окна квартиры выходят на обратную от подъезда сторону, солнечная сторона. Напротив дома находится детский сад, а также есть еще 2 детских сада в пешей доступности, очень удобно для семей с детьми, в соседнем дворе есть современная игровая площадка. Также в шаговой доступности три гимназии, колледж, несколько топовых ресторанов.Квартирой владеет один взрослый собственник. Квартира в одной семье очень длительное время. Никто не прописан. Квартира свободна, ключи в день сделки. Прямая продажа Звоните и приезжайте на просмотр в удобное для вас время, проведу показ квартиры и расскажу чуть подробнее.

Читать полностью

    Для того, чтобы купить трехкомнатную квартиру по адресу: Мурманск, ул. Трудовых Резервов, 8, позвоните по телефону +7 (911) 301-84-23. Торопитесь! Объявление №30094203775 о продаже трехкомнатной квартиры опубликовано Вчера.

    Позвонить Написать
    5 000 000 Р62 320 $ или 54 360
    Агент
    +7 (911) 301-84-23
    Начать чат с агентом
    Похожие предложения
    2-к кв. Мурманская область, Мурманск ул. Трудовых Резервов, 8 (43.0 м) - Фото 1
    2-к кв. Мурманская область, Мурманск ул. Трудовых Резервов, 8 (43.0 м) - Фото 2
    2-комнатная квартира, общая площадь 43м², жилая 30м², кухня 6м²

    К продаже предлагается просторная квартира уникальной планировки с полным капитальным ремонтом В данном объекте недвижимости выполнено зонирование на полноценную кухню-гостиную и спальню. В квартире произведена замена, труб и электрики, уложен ламинат,...
    • 43 м²
    • 2-ком
    • 4/5 эт.
    • кирпичный
    4 990 000 Р
    Агент
    +7 (911) Показать номер
    Посмотреть контакты
    2-к кв. Мурманская область, Мурманск ул. Адмирала флота Лобова, 11к4 ... - Фото 1
    2-к кв. Мурманская область, Мурманск ул. Адмирала флота Лобова, 11к4 ... - Фото 2
    2-комнатная квартира, общая площадь 43м², жилая 27м², кухня 7м²

    Арт.Предлагается к покупке двухкомнатная квартира в панельном доме. Площадь квартиры 43,5 кв.м., комнаты изолированные 17+10.4 кв.м., кухня 7.5. кв.м. Состояние квартиры отличное, можно заехать и жить, не требует вложений. В квартире сделан очень достойный...
    • 43 м²
    • 2-ком
    • 5/9 эт.
    • панельный
    5 100 000 Р
    Агент
    +7 (981) Показать номер
    Посмотреть контакты
    1-к кв. Мурманская область, Мурманск просп. Ленина, 65 (38.5 м) - Фото 1
    1-к кв. Мурманская область, Мурманск просп. Ленина, 65 (38.5 м) - Фото 2
    1-комнатная квартира, общая площадь 38м², жилая 21м², кухня 11м²

    Продаётся однокомнатная сталинка в доме — объекте культурного наследия. Самый центр, статус, потрясающий вид.Это не просто квартира. Это место с историей, характером и архитектурой, которую больше не строят.Предложение уникально:• Огромная кухня 11 м...
    • 38 м²
    • 1-ком
    • 6/7 эт.
    • кирпичный
    5 000 000 Р
    Агент
    +7 (911) Показать номер
    Посмотреть контакты
    3-к кв. Мурманская область, Мурманск Советская ул., 21 (59.6 м) - Фото 1
    3-к кв. Мурманская область, Мурманск Советская ул., 21 (59.6 м) - Фото 2
    3-комнатная квартира, общая площадь 59м², жилая 41м², кухня 6м²

    Трехкомнатная просторная квартира в центре города, общей площадью 59,6м2.Дом кирпичный. В квартире выполнен косметический ремонт и функционально использовано пространство всех помещений. Комнаты на разные стороны, имеется большая гостиная, детская и спальня....
    • 59 м²
    • 3-ком
    • 5/5 эт.
    • кирпичный
    4 990 000 Р
    Агент
    +7 (911) Показать номер
    Посмотреть контакты
    2-к кв. Мурманская область, Мурманск ул. Адмирала флота Лобова, 39/13 ... - Фото 1
    2-к кв. Мурманская область, Мурманск ул. Адмирала флота Лобова, 39/13 ... - Фото 2
    2-комнатная квартира, общая площадь 57м², жилая 32м², кухня 6м²

    Продается уютная и просторная 2-комнатная квартира вторичной продажи на 2 этаже 5-этажного дома общей площадью 57.20 кв.м. Это идеальное предложение для тех, кому важен комфорт и удобство в повседневной жизни.В квартире сейчас стандартный ремонт, что...
    • 57 м²
    • 2-ком
    • 2/5 эт.
    • панельный
    5 000 000 Р
    Агент
    +7 (911) Показать номер
    Посмотреть контакты

    Не нашли подходящего объявления?

    Оставьте заявку, и наши риэлторы подберут квартиру в районе Мурманска

    (0)