Россия, Мурманская область, Мурманск, ул. Капитана Копытова, 27
3 400 000 Р 44 120 $ или 37 340

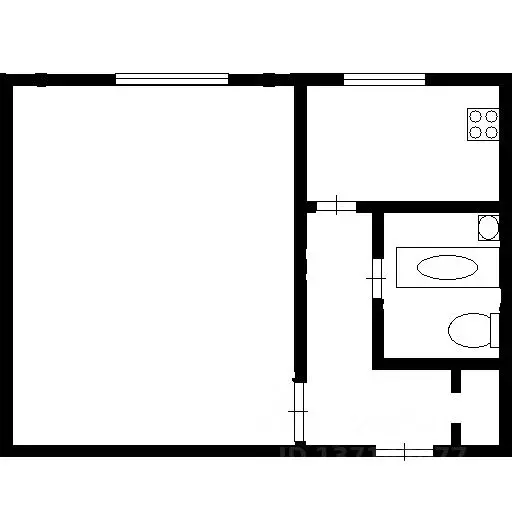
Информация о квартире

44 м2
Площадь
30 м2
Жилая
6 м2
Кухня
2
Комнаты
2
Этаж
5
Этажность

Дополнительная информация

Тип дома
панельный
Развернуть
Агент
+7 (911) 331-83-44
Начать чат с агентом

2-к кв. Мурманская область, Мурманск ул. Капитана Копытова, 27 (44.0 ...

В продаже уютная двухкомнатная квартира, расположенная на 2 этаже пятиэтажного дома.Главное преимущество квартиры - планировка: комнаты на разные стороны, раздельный санузел, балкон.В квартире произведен косметический ремонт. Квартира теплая и солнечная. В пешей доступности вся необходимая инфраструктура.Эта квартира прекрасно подойдет для семей с детьми, благодаря своему удобному расположению. Рядом с домом расположены образовательные и медицинские учреждения, а также магазины и супермаркеты для удобства жителей.В шаговой доступности вы найдете средние общеобразовательные школы 33 и 22, детский сад 18, Мурманскую городскую поликлинику 2, а также Драматический театр Северного флота. Магнит, супермаркет, расположенный всего в 100 метрах от дома, сделает вашу повседневную жизнь удобной и комфортной.В непосредственной близости остановка общественного транспорта. Просторное место для парковки автомобиля.Подходит любая форма расчета. Более подробную информацию о квартире с удовольствием предоставим дополнительно Номер объекта: 1/591307/14369

Читать полностью

    Для того, чтобы купить двухкомнатную квартиру по адресу: Мурманск, ул. Капитана Копытова, 27, позвоните по телефону +7 (911) 331-83-44. Торопитесь! Объявление №30092381418 о продаже двухкомнатной квартиры опубликовано Вчера.

    Позвонить Написать
    3 400 000 Р44 120 $ или 37 340
    Агент
    +7 (911) 331-83-44
    Начать чат с агентом
    Похожие предложения
    1-к кв. Мурманская область, Мурманск ул. Героев Рыбачьего, 27 (32.0 м) - Фото 1
    1-к кв. Мурманская область, Мурманск ул. Героев Рыбачьего, 27 (32.0 м) - Фото 2
    1-комнатная квартира, общая площадь 32м², жилая 17м², кухня 7м²

    Арт.Предлагаем Вам видовую однокомнатную квартиру на девятом этаже с электроплитой. Квартира теплая, светлая с хорошим видом из окна. Отличный вариант не переплачивать за ремонт, а сделать все на свой вкус. Подъезд отремонтированный, лифт новый, в доме...
    • 32 м²
    • 1-ком
    • 9/9 эт.
    • панельный
    3 300 000 Р
    Агент
    +7 (911) Показать номер
    Посмотреть контакты
    2-к кв. Мурманская область, Мурманск ул. Чумбарова-Лучинского, 27 ... - Фото 1
    2-к кв. Мурманская область, Мурманск ул. Чумбарова-Лучинского, 27 ... - Фото 2
    2-комнатная квартира, общая площадь 44м², жилая 27м², кухня 6м²

    Продается уютная двухкомнатная квартира в районе с развитой инфраструктурой.Состояние хорошее, требуется доделать косметический ремонт в комнатах под свой вкус (есть возможность изолировать комнаты по своему усмотрению), установлена металлическая входная...
    • 44 м²
    • 2-ком
    • 5/5 эт.
    • панельный
    3 500 000 Р
    Агент
    +7 (981) Показать номер
    Посмотреть контакты
    3-к кв. Мурманская область, Мурманск Абрам-Мыс жилрайон, пер. ... - Фото 1
    3-к кв. Мурманская область, Мурманск Абрам-Мыс жилрайон, пер. ... - Фото 2
    3-комнатная квартира, общая площадь 60м², жилая 45м², кухня 6м²

    Арт.Продадим квартиру в кирпичном доме с прекрасным видом на залив и поселок.Прекрасная теплоизоляция и шумоизоляция в квартире. Очень удобная планировка. С/у раздельно. Комнаты на разные стороны.Для вас сделан свежий косметический ремонт:установлена...
    • 60 м²
    • 3-ком
    • 4/5 эт.
    • кирпичный
    3 400 000 Р
    Агент
    +7 (911) Показать номер
    Посмотреть контакты
    2-к кв. Мурманская область, Мурманск ул. Алексея Хлобыстова, 30 (42.1 ... - Фото 1
    2-к кв. Мурманская область, Мурманск ул. Алексея Хлобыстова, 30 (42.1 ... - Фото 2
    2-комнатная квартира, общая площадь 42м², жилая 27м², кухня 5м²

    Предлагается к приобретению уютная двухкомнатная квартира, где все готово для комфортного проживания с первого дня. Планировка квартиры предусматривает расположение комнат на разные стороны, что обеспечивает естественное освещение в течение всего дня....
    • 42 м²
    • 2-ком
    • 2/5 эт.
    3 500 000 Р
    Агент
    +7 (981) Показать номер
    Посмотреть контакты
    2-к кв. Мурманская область, Мурманск Росляково жилрайон, ул. ... - Фото 1
    2-к кв. Мурманская область, Мурманск Росляково жилрайон, ул. ... - Фото 2
    2-комнатная квартира, общая площадь 43м², жилая 30м², кухня 6м²

    К продаже предлагается двухкомнатная квартира в Ленинском районе города Мурманск, в самом центре большого Росляково В квартире сделан хороший косметический ремонт в светлых, комфортных глазу, тонах. Была произведена замена всех окон и межкомнатных дверей,...
    • 43 м²
    • 2-ком
    • 4/5 эт.
    • кирпичный
    3 300 000 Р
    Агент
    +7 (911) Показать номер
    Посмотреть контакты

    Не нашли подходящего объявления?

    Оставьте заявку, и наши риэлторы подберут квартиру в районе Мурманска

    (0)