6 133 350 Р 77 300 $ или 65 990

Информация о квартире

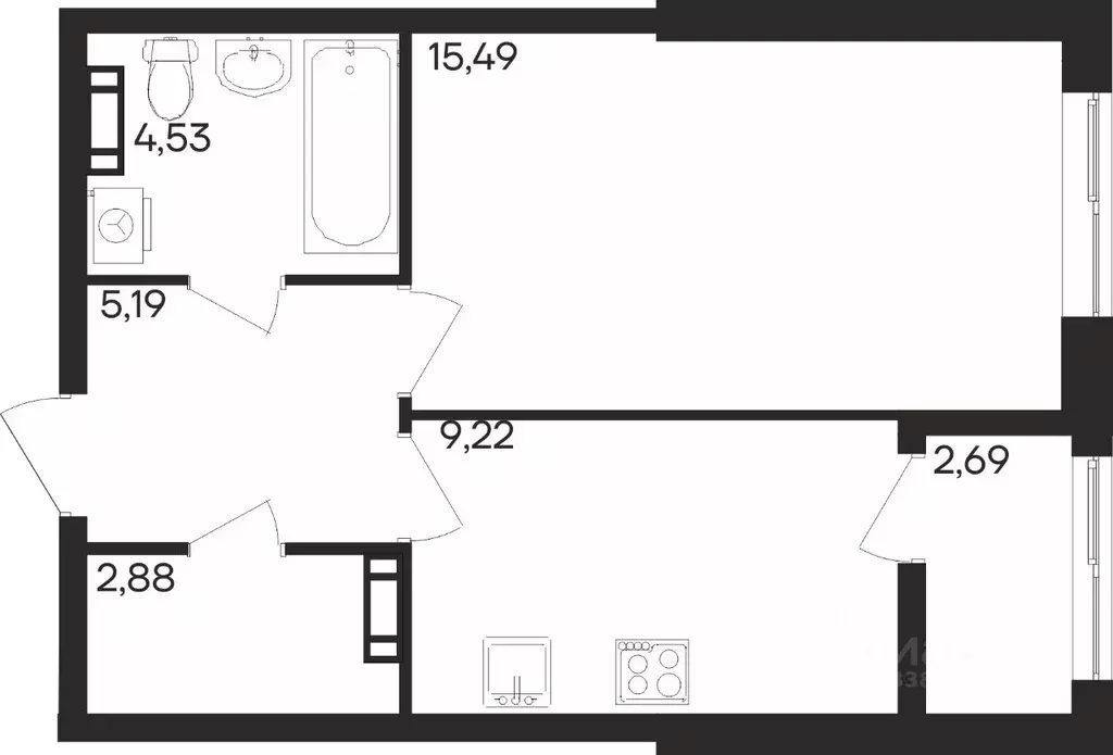
39 м2
Площадь
1
Комната
12
Этаж
16
Этажность

Дополнительная информация

Тип дома
монолит
Развернуть
Агент
+7 (912) 096-60-09
Начать чат с агентом

1-к кв. Мурманская область, Мурманск Первомайский округ, (39.57 м)

Продаётся 1-комнатная квартира в строящемся доме (Дом 17), срок сдачи: IV-кв. 2026, общей площадью 39.57 кв.м., на 12 этаже. Мурманск называют Воротами в Арктику . Здесь можно узнать, как устроен первый в мире атомный ледокол, насладиться красотами неповторимой природы - видами на Северный Ледовитый океан, озерами, дикими тундрами, живописными горами и завораживающим северным сиянием ЖК Северное сияние - идеальное место для тех, кто хочет жить в уютном и современном районе, наслаждаясь всеми преимуществами комфортной жизни. Два монолитно-каркасных 16-этажных дома выполнены в современном стиле. Архитектура жилого комплекса органично вписана в городской ландшафт. Здесь тщательно продумана планировка каждой квартиры: популярные студии;эргономичные однокомнатные;функциональные двухкомнатные;двухкомнатные квартиры евро-формата.В ЖК Северное сияние предусмотрено всё для Вашего комфорта: уютные, благоустроенные дворы без машин;современная детская площадка;спортивная площадка;ландшафтное озеленение;места отдыха;в каждом доме предусмотрено по два просторных бесшумных лифта;помещения для хранения колясок, санок и велосипедов жильцов;удобные парковочные пространства, в том числе наземная двухуровневая автостоянка открытого типа.На первом этаже одного из домов в коммерческих помещениях разместятся кофейни, продуктовые магазины, аптеки и другие объекты торговли и услуг. В шаговой доступности находится всё необходимое для комфортной жизни: остановки общественного транспортапродуктовые магазиныаптекидетские садышколыспортивная школадосуговые центрыЖилой комплекс Северное сияниеасположен в активном районе города с хорошо развитой инфраструктурой и удобной транспортной развязкой. Расстояние на автомобиле от жилого комплекса Северное сияние до: аэропорта (30 мин) - 30 кмжелезнодорожного вокзала (15 мин) - 5,3 кмКольского моста (16 мин) - 5,9 кмМурманск Молла (10 мин) - 4 кмМорского вокзала - (20 мин) - 6,4 кмТоргового порта - (20 мин) - 6,1 кмЖилой комплекс Северное сияние - новое современное пространство для жизни от надежного застройщика. Безусловно достойная жизнь. Работаем по ФЗ-214 с использованием эскроу-счетов - 100 гарантия сохранности средств дольщиков. Доступна ипотека, рассрочка, использование маткапитала.

Читать полностью
    Позвонить Написать
    6 133 350 Р77 300 $ или 65 990
    Агент
    +7 (912) 096-60-09
    Начать чат с агентом
    Похожие предложения в Мурманске
    1-к кв. Мурманская область, Мурманск Первомайский округ,  (39.57 м) - Фото 1
    1-к кв. Мурманская область, Мурманск Первомайский округ,  (39.57 м) - Фото 2
    1-комнатная квартира, общая площадь 39м²

    Продаётся 1-комнатная квартира в строящемся доме (Дом 17), срок сдачи: IV-кв. 2026, общей площадью 40 кв.м., на 14 этаже. Мурманск называют Воротами в Арктику . Здесь можно узнать, как устроен первый в мире атомный ледокол, насладиться красотами неповторимой...
    • 39 м²
    • 1-ком
    • 14/16 эт.
    • монолит
    6 133 350 Р
    Агент
    +7 (912) Показать номер
    Посмотреть контакты
    1-к кв. Мурманская область, Мурманск Первомайский округ,  (39.57 м) - Фото 1
    1-к кв. Мурманская область, Мурманск Первомайский округ,  (39.57 м) - Фото 2
    1-комнатная квартира, общая площадь 39м²

    Продаётся 1-комнатная квартира в строящемся доме (Дом 17), срок сдачи: IV-кв. 2026, общей площадью 40 кв.м., на 12 этаже. Мурманск называют Воротами в Арктику . Здесь можно узнать, как устроен первый в мире атомный ледокол, насладиться красотами неповторимой...
    • 39 м²
    • 1-ком
    • 12/16 эт.
    • монолит
    6 133 350 Р
    Агент
    +7 (912) Показать номер
    Посмотреть контакты
    1-к кв. Мурманская область, Мурманск Первомайский округ,  (39.57 м) - Фото 1
    1-к кв. Мурманская область, Мурманск Первомайский округ,  (39.57 м) - Фото 2
    1-комнатная квартира, общая площадь 39м²

    Продаётся 1-комнатная квартира в строящемся доме (Дом 17), срок сдачи: IV-кв. 2026, общей площадью 40 кв.м., на 13 этаже. Мурманск называют Воротами в Арктику . Здесь можно узнать, как устроен первый в мире атомный ледокол, насладиться красотами неповторимой...
    • 39 м²
    • 1-ком
    • 13/16 эт.
    • монолит
    6 133 350 Р
    Агент
    +7 (912) Показать номер
    Посмотреть контакты
    1-к кв. Мурманская область, Мурманск Первомайский округ,  (40.0 м) - Фото 1
    1-к кв. Мурманская область, Мурманск Первомайский округ,  (40.0 м) - Фото 2
    1-комнатная квартира, общая площадь 40м²

    Продаётся 1-комнатная квартира в строящемся доме (Дом 17), срок сдачи: IV-кв. 2026, общей площадью 39.57 кв.м., на 8 этаже. Мурманск называют Воротами в Арктику . Здесь можно узнать, как устроен первый в мире атомный ледокол, насладиться красотами неповторимой...
    • 40 м²
    • 1-ком
    • 8/16 эт.
    • монолит
    6 200 000 Р
    Агент
    +7 (912) Показать номер
    Посмотреть контакты
    1-к кв. Мурманская область, Мурманск Первомайский округ,  (39.57 м) - Фото 1
    1-к кв. Мурманская область, Мурманск Первомайский округ,  (39.57 м) - Фото 2
    1-комнатная квартира, общая площадь 39м²

    Продаётся 1-комнатная квартира в строящемся доме (Дом 17), срок сдачи: IV-кв. 2026, общей площадью 39.57 кв.м., на 14 этаже. Мурманск называют Воротами в Арктику . Здесь можно узнать, как устроен первый в мире атомный ледокол, насладиться красотами неповторимой...
    • 39 м²
    • 1-ком
    • 14/16 эт.
    • монолит
    6 133 350 Р
    Агент
    +7 (912) Показать номер
    Посмотреть контакты

    Не нашли подходящего объявления?

    Оставьте заявку, и наши риэлторы подберут квартиру в новостройке в районе Мурманска

    (0)