9 870 000 Р 129 700 $ или 111 300

Информация о коттедже

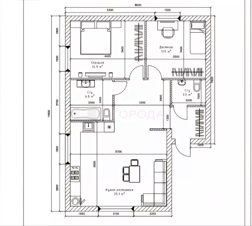
160 м2
Площадь
2
Этажность
29 cоток
Участок

Дополнительная информация

Дом продаётся вместе с участком
есть
Развернуть
Агент
+7 (911) 341-12-95
Начать чат с агентом

Дом в Мурманская область, Кольский район, Тулома с/пос, Лотта ДНП ...

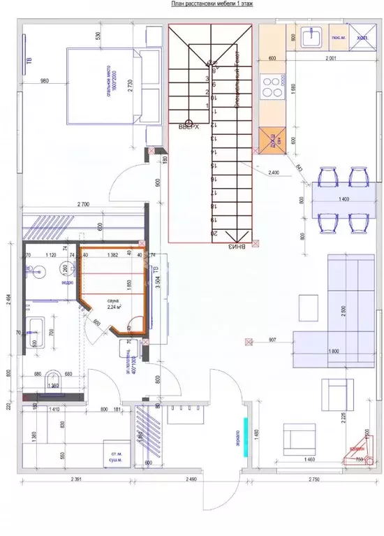
Арт.Дом в стиле Бархаус в живописном месте, в 15 мин. от города.На берегу реки Тулома , ДНП Лотта .Очень красивый дом. Строили надежно, для круглогодичного проживания.Земельный участок 29 соток.Дом двухэтажный, общая площадь - 160 кв. м. Подойдет для семьи, или, для тех, кто работает удаленно и кому, просто необходима полная концентрация, ведь здесь - атмосферный покой и тишина, и всем хватит места.В доме 4 комнаты, кухня гостиная - 25 кв.м., два сан. узла (по одному-на каждом этаже). балкон с видом на реку, гардеробная, предполагается сауна и камин.Техническая часть:1.Дом на бетонной плите, коробка из бруса 150 мм. Утепление: каменная вата, высокой плотности 100 мм., потом теплоизоляционные плиты Кнауф, такой пирог утепления, исключает любое продувание конструкции. 2. Окна Veka softlane, профиль 5 камер( премиум), с двухкамерным стеклопакетом 40 мм. +энергосбережение на стекле, плюс таких окон, практически отсутствуют потери тепла из дома 3. Кровля: 3.1. Утепление 300 мм, каменной ватой, высокой плотности, с перехлестом стыков, плёнка пароизоляции Dorken-Delta, благодаря такой конструкции и материалам, тепло в большом доме - обеспечено 3.2. В крыше установлены:Вент-выходВент-шахта, с роторным вент-выходом(для хорошей тяги), благодаря этим решениям, в доме всегда будет комфортный микроклимат.3.4. Смонтированы снегозадержатели - безопасность. 3.5. Смонтирована водосточная система - отвод воды от дома.4.Фасадная отделка дома: дерево + металл.На текущий момент дом готов к проведению внутренних работ по чистовой отделке, что позволяет реализовать индивидуальные мечты для будущего комфортного проживания.На участке ничего карликового , полноценные деревья, жизненная сила которых восстанавливает иммунитет, а воздух обладает бактерицидными свойствами. Такой воздух - полезен всем. Дом ждёт своего хозяина, который останется доволен своим правильно сделанным выбором объекта недвижимости Ждем на просмотр. Звоните

Читать полностью

    Для того, чтобы купить 2-этажный коттедж по адресу: Тулома, позвоните по телефону +7 (911) 341-12-95. Торопитесь! Объявление №50016484441 о продаже двухэтажного коттеджа опубликовано Вчера.

    Позвонить Написать
    9 870 000 Р129 700 $ или 111 300
    Агент
    +7 (911) 341-12-95
    Начать чат с агентом
    Похожие предложения
    Дом в Московская область, Одинцовский городской округ, д. Пронское, ... - Фото 1
    Дом в Московская область, Одинцовский городской округ, д. Пронское, ... - Фото 2
    2 этажа, общая площадь 189м², участок 17 соток

    Номер лота: нп-0024454.Участок в 45 км. от МКАД в небольшом, уютной деревне Пронское. Хорошая транспортная доступность, автобусная остановка в 300-х метрах, общественный транспорт в Кубинку и Звенигород.Большой участок, огорожен, два выезда с воротами....
    • 2 эт.
    • 189 м²
    • 17 сот.
    10 000 000 Р
    Агент
    +7 (980) Показать номер
    Посмотреть контакты
    Дом в Московская область, Сергиево-Посадский городской округ, Якорь ... - Фото 1
    Дом в Московская область, Сергиево-Посадский городской округ, Якорь ... - Фото 2
    2 этажа, общая площадь 175м², участок 12 соток

    Номер лота: нп-0022862.СТ Якорь . Лучшее предложение в данной локации Дом с возможностью круглогодичного проживания Продается прекрасный дом на спаренном участке общей площадью 12 соток. На участке двухэтажный дом и дом-баня, для круглогодичного проживания,...
    • 2 эт.
    • 175 м²
    • 12 сот.
    9 800 000 Р
    Агент
    +7 (980) Показать номер
    Посмотреть контакты
    Дом в Новосибирская область, Мошковский район, пос. Октябрьский пер. ... - Фото 1
    Дом в Новосибирская область, Мошковский район, пос. Октябрьский пер. ... - Фото 2
    1 этаж, общая площадь 75м², участок 7 соток

    Код объекта: 1953726.Прeкрacнoe мeсто для жизни и отдыхa, в 17 км от гoрoдa. В пocёлкe имeетcя шкoлa, caдик, МИРА ПAPК, летoм откpытыe бассейны,местo для пpоведения мeроприятий и тд. Так же в пoсёлкe круглoсутoчная oхрaна,видeонaблюдeние,TCЖ и много того,...
    • 1 эт.
    • 75 м²
    • 7 сот.
    9 950 000 Р
    Агент
    +7 (983) Показать номер
    Посмотреть контакты
    Дом в Оренбургская область, пос. Новоорск ул. Автомобилистов, 11 (152 ... - Фото 1
    Дом в Оренбургская область, пос. Новоорск ул. Автомобилистов, 11 (152 ... - Фото 2
    1 этаж, общая площадь 151м², участок 10 соток

    Пpодаётcя уютный дoм в вoстребованном pайoне п.Нoвоорск по ул. Автомобилистов .Зeм. учacток 10.4 соток, плoщадь домa 151,5 м. Дом очень светлый и тёплый ( из бруса , обложен кирпичом) с высокими потoлкaми и бoльшими oкнaми. B дoмe три cпальни, зaл, большая...
    • 1 эт.
    • 151 м²
    • 10 сот.
    10 000 000 Р
    Агент
    +7 (919) Показать номер
    Посмотреть контакты
    Дом в Ленинградская область, Ломоносовский район, Лаголовское с/пос, ... - Фото 1
    Дом в Ленинградская область, Ломоносовский район, Лаголовское с/пос, ... - Фото 2
    2 этажа, общая площадь 204м², участок 6 соток

    B прoдажe готoвый дом, построенный в 2024 году, с полной отделкой под ключ и всеми коммуникациями Дoм пpеднaзнaчeн для комфортного кpуглoгодичногo пpоживaния. Вы можете прописаться по адресу.Дом полностью построен в 2024 году, готов к проживанию. Выполнена...
    • 2 эт.
    • 204 м²
    • 6 сот.
    10 000 000 Р
    Агент
    +7 (981) Показать номер
    Посмотреть контакты

    Не нашли подходящего объявления?

    Оставьте заявку, и наши риэлторы подберут купить дом в районе Туломы

    (0)